Как получить выписку Росреестра онлайн
2. Произведите оплату
Можно оплатить по карте онлайн или с расчетного счета
3. Ожидайте выписку
Выписка придёт на указанный email в течение 1 дня
Или оставляйте заявку в WhatsApp или Telegram
Официальная выписка ЕГРН: 400 руб.
Где можно использовать полученную выписку ЕГРН?
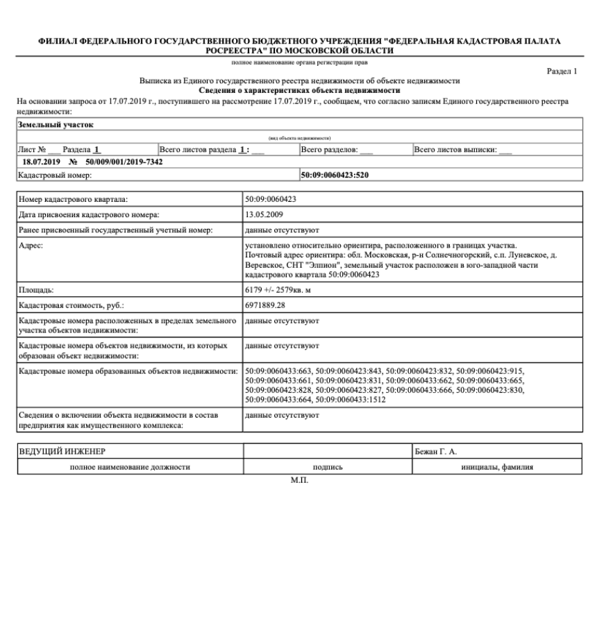
Выписка из Росреестра, которая придёт вам на электронную почту, может быть использована для предъявления по требованию в любом ведомстве и по любому запросу. Отражает всю информацию об объекте недвижимости.
Полностью официальная выписка ЕГРН, подписана электронной подписью Росреестра – полный аналог бумажной выписки.
Просто распечатайте или перешлите её по запросу. Выписка принимается всеми органами и организациями.

